中古マンション 神戸 東灘区田中町1丁目

更新日:2025年11月23日 
次回更新予定日:2025年12月7日

JR摂津本山駅南側駅前ロータリーに面する立地です。周辺は小規模な商店がある程度で、それほどの喧噪感はございません。平成11年建築(築25年経過)の14階建て、総戸数95戸の中規模マンション。総戸数が比較的多いため、毎月の管理費等が比較的安価な設定となっております。当該マンション1階にも、クリニックや歯科医院、薬局・喫茶店など、生活に便利な施設が入店しており、何かと便利なのです。駅前過ぎるほどの生活空間はいかがでしょうか。

物件種別
売買 マンション
マンション名
ハイツ本山
所在地
神戸市東灘区田中町1丁目
交通
東海道本線 / 摂津本山駅
バス / 徒歩
分 / 1分
価格
4650万円
管理費 / 積立金
6300円 / 7040円
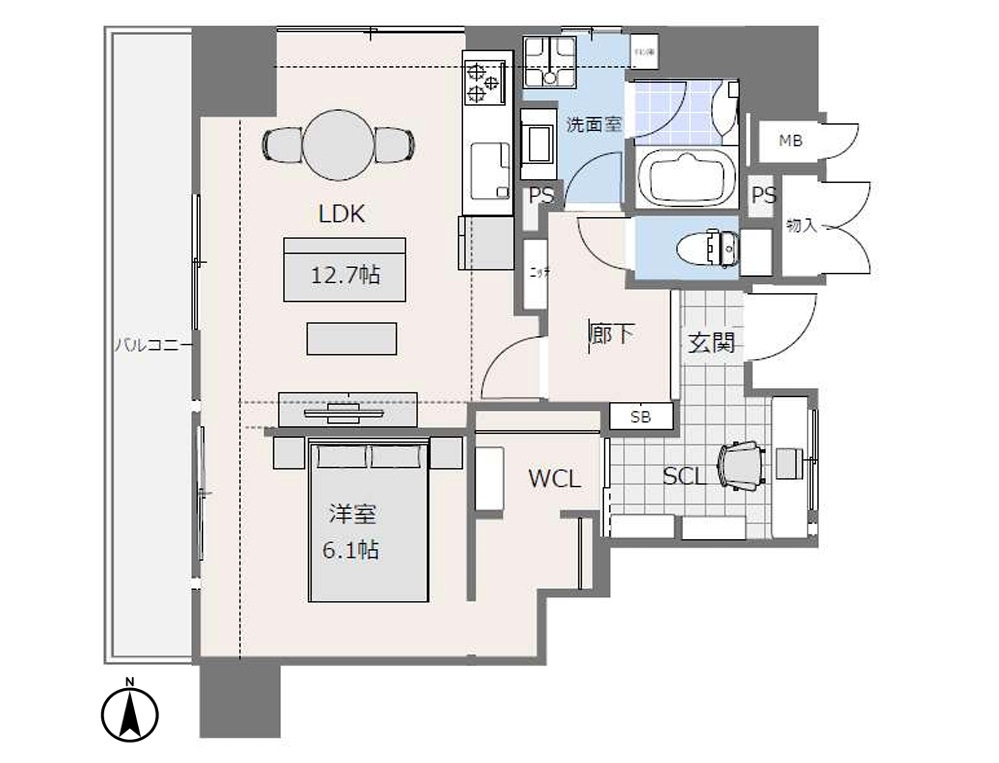
間取
1LDK
専有面積
54.63m2
建物構造
SRC造14階建14階部分
総戸数
95戸
築年月
1999年 10月
用途地域
近隣商業地域
現況 / 引渡
空家 / 即日
小学校区
本山第一小学校
中学校区
本山南中学校
備考
北西角部屋

駅周辺情報

阪急神戸線
岡本駅:徒歩4分(320m)
コンビニ
セブンイレブンJR摂津本山駅改札口店:徒歩1分(0m)
スーパー
グルメシティ本山店:徒歩3分(190m)
スーパー
コープ岡本店:徒歩4分(300m)
スーパー
ダイエー甲南店:徒歩11分(800m)
コンビニ
ファミリーマート東灘岡本橋店:徒歩3分(190m)
銀行
播州信用金庫本山支店:徒歩2分(170m)
コンビニ
セブンイレブン神戸岡本2丁目店:徒歩3分(210m)
交番
岡本交番:徒歩4分(350m)
ホームセンター
コープリビング甲南:徒歩8分(600m)
ホームセンター
コーナン魚崎店:徒歩31分(2500m)
銀行
三井住友銀行岡本支店:徒歩1分(79m)
銀行
りそな銀行神戸岡本支店:徒歩2分(140m)
銀行
みなと銀行本山支店:徒歩2分(140m)
ホームセンター
コープリビング甲南:徒歩8分(550m)
郵便局
神戸岡本郵便局:徒歩2分(92m)
保育所
本山保育所:徒歩3分(250m)
幼稚園
光の園幼稚園:徒歩5分(450m)
小学校
本山第一小学校:徒歩5分(400m)
中学校
本山中学校:徒歩7分(600m)
公園
中之町公園:徒歩5分(350m)
公園
本山街園:徒歩5分(350m)
公園
五反田公園:徒歩4分(350m)
薬局
スギ薬局本山南店:徒歩12分(850m)
薬局
ウェルシア神戸岡本店:徒歩1分(100m)
高校
甲南女子高校:徒歩25分(2100m)
大学
甲南大学:徒歩12分(1000m)
大学
甲南女子大学:徒歩22分(1800m)
大学
神戸薬科大学:徒歩16分(1300m)

近い条件の物件


最近チェックした物件