新築一戸建 神戸 灘区篠原北町4丁目

更新日:2025年11月4日 
次回更新予定日:2025年11月18日

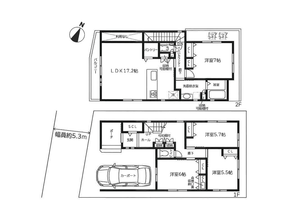
阪急六甲駅を北西へ約1.1キロ、なだらかな登り勾配の道程で徒歩15分ほどのアクセスとなります。2番系統のバス路線では、バス乗車6分、護国神社前バス停より徒歩1分ほどのアクセスも可能です。山の手のエリア、周辺は一戸建て住宅が建ち並ぶ閑静な住宅街となっております。仙谷川東側道路に面する立地です。木造2階建新築分譲住宅、2区画販売の南側の棟です。ビルトインの駐車場が1台分付いております。延べ床面積120㎡に、4LDKの間取りを配置、1階に洋室3つ、2階にLDKと7帖の主寝室を設置しております。17.2帖サイズのLDKは、広く河川の方に面しており、爽やかな景観と空気を楽しめます。キッチン横の大容量のパントリーや、各所の収納など、主婦目線での間取りがおすすめです。

物件種別
売買 戸建
所在地
神戸市灘区篠原北町4丁目(A号地)
交通
阪急電鉄神戸線 / 六甲駅
バス / 徒歩
分 / 15分
価格
6980万円
土地面積 / 私道負担
99.81m2 / 0m2
建物面積
120.61m2
間取
4LDK
建蔽率 / 容積率
60% / 150%
建物構造
木造2階建
築年月
2025年 7月
用途地域
一種低層
現況 / 引渡
完成済み / 相談
小学校区
美野丘小学校
中学校区
長峰中学校
備考
西側幅員約5.3m公道に接道
駐車スペース1台あり

駅周辺情報

スーパー
阪急オアシス:徒歩1分(24m)
スーパー
いかりスーパー:徒歩2分(88m)
コンビニ
ローソン阪急六甲店:徒歩1分(24m)
ショッピングセンター
サザンモール六甲:徒歩23分(1600m)
ホームセンター
コーナン灘大石川店:徒歩20分(1500m)
銀行
三井住友銀行:徒歩1分(37m)
銀行
池田泉州銀行:徒歩2分(130m)
郵便局
神戸篠原郵便局:徒歩7分(550m)
保育所
やはた桜保育所:徒歩7分(450m)
保育園
同朋保育園:徒歩15分(1200m)
幼稚園
六甲幼稚園:徒歩3分(210m)
小学校
六甲小学校:徒歩5分(350m)
中学校
長峰中学校:徒歩21分(1600m)
高校
六甲学院高等学校:徒歩26分(1300m)
高校
親和女子高校:徒歩14分(1100m)
大学
神戸大学:徒歩15分(1300m)
大学
神戸松蔭女子学院大学:徒歩14分(1200m)
神社
六甲八幡神社:徒歩2分(150m)
コンビニ
ファミリーマート灘神前町店:徒歩9分(700m)
ドラッグストア
コクミンドラッグ:徒歩1分(11m)
交番
灘警察署八幡交番:徒歩4分(400m)

近い条件の物件


最近チェックした物件