新築一戸建 神戸 灘区大石北町

更新日:2025年11月15日 
次回更新予定日:2025年11月29日

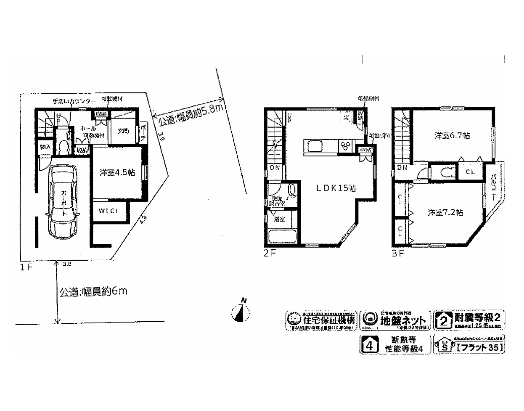
阪神大石駅を南西へ約250m、徒歩3分ほどのアクセスとなります。周辺は一戸建ての住宅の他、小規模な工場や倉庫などが混在するエリアです。西灘公園南側付近です。本物件は、6m幅員の東南角に面した立地にて、木造3階建新築分譲住宅、1区画の販売です。ビルトインの駐車場が1台分付いております。周辺の交通量は比較的少なめです。延べ床面積97㎡(車庫面積含む)に、3LDKの間取りを配置、トイレは1階と3階の2箇所、バルコニーは2階に設置されております。キッチン背面に、大容量の食器棚、横に小規模なパントリーが付いており、各所に細かな収納が設置されているのがおすすめです。周辺に高層の建物等なく、採光や通気性が十分に確保されております。

物件種別
売買 戸建
所在地
神戸市灘区大石北町
交通
阪神電鉄本線 / 大石駅
バス / 徒歩
分 / 3分
価格
4480万円
土地面積 / 私道負担
46.7m2 / 0m2
建物面積
97.28m2
間取
3LDK
建蔽率 / 容積率
60% / 200%
建物構造
木造3階建
築年月
2025年 4月
用途地域
一種住居
現況 / 引渡
完成済 / 相談
小学校区
西郷小学校
中学校区
烏帽子中学校
備考
南側幅員約6m公道に接道
東側幅員約5.7m公道に接道
建築確認番号 第J24-20415号
駐車スペース1台あり
南東角地

駅周辺情報

コンビニ
ファミリーマート阪神大石駅前店:徒歩1分(78m)
JR
摩耶駅:徒歩11分(750m)
ホームセンター
コーナン灘大石川店:徒歩3分(250m)
ホームセンター
コーナンPRO新在家店:徒歩14分(1100m)
ショッピングセンター
サザンモール六甲:徒歩16分(1300m)
銀行
徳島大正銀行神戸支店:徒歩2分(160m)
信用金庫
淡路信用金庫灘支店:徒歩2分(120m)
郵便局
神戸西郷郵便局:徒歩5分(350m)
郵便局
灘郵便局:徒歩7分(550m)
交番
大石交番:徒歩3分(240m)
税務署
灘税務署:徒歩7分(550m)
保育園
おおいしこども園:徒歩5分(400m)
幼稚園
神戸市立灘すずかけ幼稚園:徒歩4分(290m)
小学校
西郷小学校:徒歩3分(210m)
中学校
原田中学校:徒歩4分(300m)
公園
西灘公園:徒歩3分(210m)
日本酒醸造所
沢の鶴資料館:徒歩8分(600m)
神社
船寺神社:徒歩2分(130m)

近い条件の物件


最近チェックした物件