中古マンション 神戸 東灘区御影2丁目

更新日:2025年11月15日 
次回更新予定日:2025年11月29日

御影北小学校近く

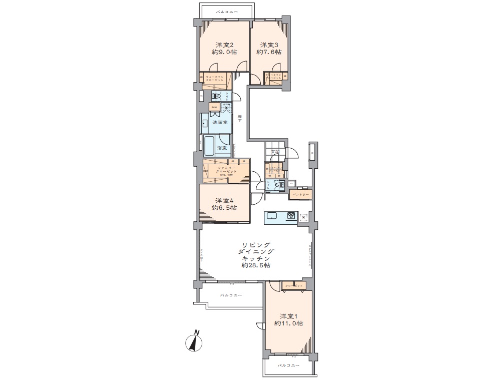
阪急御影駅を南西へ約500m、徒歩6分ほどのアクセスとなります。周辺は木造2階建の住宅が建ち並ぶ閑静な住宅街となっております。平成2年建築の4階建て、総戸数22戸の小規模マンション、このたび3階部分、南向きのお部屋をリノベーションしました。床・壁・天井の張替は勿論、システムキッチン・浴室・洗面・トイレなどの水回りや給湯器などの設備もすべて新調されております。専有面積150㎡に、4LDKの間取りを配置、ウォークインクローゼットや、納戸、パントリーなど、各所への収納が多いのが特徴的です。28.5帖サイズのLDKはとてもゆったりとしており、隣接の洋室6.5帖も、開放すれば一体としてご利用可能です。バルコニーからの景観もよく、採光や通気性など十分に確保されております。トイレは2箇所にございます。御影北小学校へ約300mほどの近さも嬉しいものです。

物件種別
売買 マンション
マンション名
エルザ御影平野A棟
所在地
神戸市東灘区御影2丁目
交通
阪急電鉄神戸線 / 御影駅
バス / 徒歩
分 / 6分
価格
8490万円
管理費 / 積立金
30180円 / 33200円
間取
4LDK
専有面積
150.88m2
建物構造
RC造4階建3階部分
総戸数
22戸
築年月
1990年 6月
用途地域
一種低層
現況 / 引渡
空家 / 即日
小学校区
御影北小学校
中学校区
御影中学校
備考
駐車場空有20000~25000円/月

駅周辺情報

財界人や文化人などの豪壮な邸宅建築が多く、市内随一の高級住宅街である。美術館や洋菓子店も多い。2008年には駅の南西に達していた市道弓場線が延伸され、ホーム西側の線路との立体交差が完了。同時に従来の南口に加えて、北口にもロータリーが整備された。
なお、阪神本線の御影駅やJR神戸線・六甲ライナーの住吉駅とは約1.2キロメートルの距離がある(南へ徒歩約15分)

スーパー
ライフ御影店:徒歩4分(350m)
スーパー
いかりスーパー御影店:徒歩12分(950m)
スーパー
阪急オアシス御影店:徒歩17分(1300m)
ショッピングセンター
御影クラッセ:徒歩18分(1300m)
コンビニ
ファミリーマート阪急御影駅前店:徒歩1分(26m)
児童館
御影北児童館:徒歩5分(350m)
コンビニ
ローソン阪急御影駅前:徒歩1分(79m)
コンビニ
セブンイレブン神戸御影2丁目店:徒歩3分(200m)
公園
郡家公園:徒歩3分(210m)
警察署
東灘警察署:徒歩13分(1000m)
ホームセンター
ニトリ:徒歩23分(1700m)
家電量販店
エディオン御影店:徒歩20分(1500m)
銀行
みなと銀行:徒歩2分(78m)
公園
深田池公園:徒歩2分(110m)
ATM
三井住友銀行:徒歩2分(110m)
郵便局
上御影郵便局:徒歩1分(89m)
保育所
御影保育所:徒歩13分(1000m)
保育園
御影のどか保育園:徒歩8分(600m)
幼稚園
郡華幼稚園:徒歩7分(500m)
小学校
御影北小学校:徒歩6分(500m)
中学校
御影中学校:徒歩15分(1100m)
短期大学
頌栄短期大学:徒歩9分(700m)
幼稚園
頌栄幼稚園:徒歩14分(800m)
美術館
香雪美術館:徒歩6分(450m)
美術館
世良美術館:徒歩4分(280m)
美術館
白鶴美術館:徒歩15分(1200m)
病院
甲南医療センター:徒歩20分(1000m)
神社
弓弦羽神社:徒歩5分(400m)
高校
御影高校:徒歩14分(1100m)

近い条件の物件


最近チェックした物件