中古マンション 神戸 東灘区本山南町5丁目

更新日:2026年2月10日 
次回更新予定日:2026年2月24日

リノベーション物件

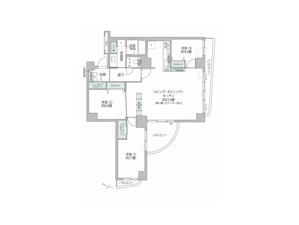
JR摂津本山駅を南西へ約800m、徒歩10分ほど、阪神青木駅を北西へ約700m、徒歩9分ほどのアクセスとなります。福井池公園の西側隣接、周辺は一戸建て住宅の他、分譲や賃貸のマンションなどが混在するエリアです。平成2年建築(築後34年経過)の15階建て、総戸数87戸の中規模マンション、このたび11階部分、南西角のお部屋をリノベーションしました。床・壁・天井の張替は勿論、システムキッチン・浴室・洗面・トイレなどの水回りや給湯器などの設備もすべて新調されております。専有面積92㎡に、3LDKの間取りを配置、バルコニーが3か所あり、全部の部屋から出入りできます。またそこからは開放的な景観もたのしめます。管理状態が良く、共用箇所のメンテナンスが行き届いているのが人気です。室内設置の小物や家具は、ディスプレイ用にて、撤去されます。

物件種別
売買 マンション
マンション名
グラン・フェルティ本山
所在地
神戸市東灘区本山南町5丁目
交通
東海道本線 / 摂津本山駅
バス / 徒歩
分 / 10分
価格
5980万円
管理費 / 積立金
15880円 / 18470円
間取
3LDK
専有面積
92.34m2
建物構造
SRC造1地下1階付15階建11階部分
総戸数
87戸
築年月
1991年 2月
用途地域
準工業地域
現況 / 引渡
空家 / 相談
小学校区
福池小学校
中学校区
本山南中学校
備考
屋内分譲駐車場権利付き 管理費1830円/月 積立金2000円/月
ペット可(但し規約による制限有り)
南西角部屋

駅周辺情報

阪急神戸線
岡本駅:徒歩4分(320m)
コンビニ
セブンイレブンJR摂津本山駅改札口店:徒歩1分(0m)
スーパー
グルメシティ本山店:徒歩3分(190m)
スーパー
コープ岡本店:徒歩4分(300m)
スーパー
ダイエー甲南店:徒歩11分(800m)
コンビニ
ファミリーマート東灘岡本橋店:徒歩3分(190m)
銀行
播州信用金庫本山支店:徒歩2分(170m)
コンビニ
セブンイレブン神戸岡本2丁目店:徒歩3分(210m)
交番
岡本交番:徒歩4分(350m)
ホームセンター
コープリビング甲南:徒歩8分(600m)
ホームセンター
コーナン魚崎店:徒歩31分(2500m)
銀行
三井住友銀行岡本支店:徒歩1分(79m)
銀行
りそな銀行神戸岡本支店:徒歩2分(140m)
銀行
みなと銀行本山支店:徒歩2分(140m)
ホームセンター
コープリビング甲南:徒歩8分(550m)
郵便局
神戸岡本郵便局:徒歩2分(92m)
保育所
本山保育所:徒歩3分(250m)
幼稚園
光の園幼稚園:徒歩5分(450m)
小学校
本山第一小学校:徒歩5分(400m)
中学校
本山中学校:徒歩7分(600m)
公園
中之町公園:徒歩5分(350m)
公園
本山街園:徒歩5分(350m)
公園
五反田公園:徒歩4分(350m)
薬局
スギ薬局本山南店:徒歩12分(850m)
薬局
ウェルシア神戸岡本店:徒歩1分(100m)
高校
甲南女子高校:徒歩25分(2100m)
大学
甲南大学:徒歩12分(1000m)
大学
甲南女子大学:徒歩22分(1800m)
大学
神戸薬科大学:徒歩16分(1300m)

近い条件の物件


最近チェックした物件