中古一戸建 神戸 灘区記田町4丁目

更新日:2025年10月18日 
次回更新予定日:2025年11月1日

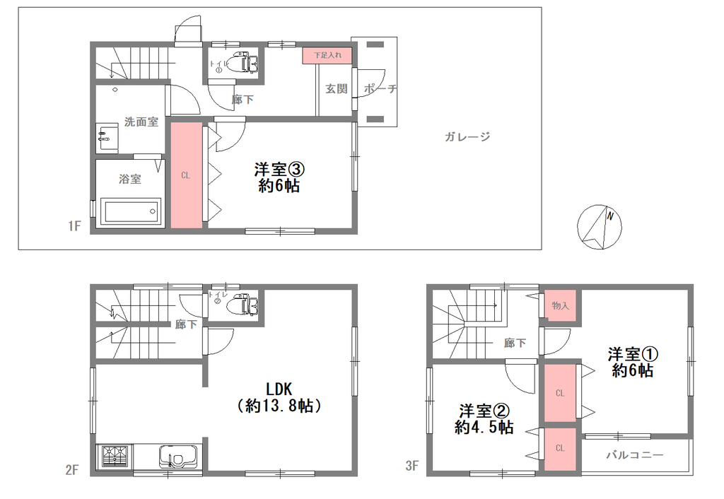
阪神石屋川駅を北西へ約480m、徒歩6分ほど。JR六甲道駅を南東へ約1キロ、徒歩15分ほどのアクセスとなります。国道2号線の少し南側のエリアで、周辺は一戸建ての住宅の他、小規模な店舗や事務所などが混在するエリアとなっております。本物件は、北側3.5m幅員の私道に面した平成10年建築(築後27年経過)の木造3階建中古住宅、このたび内外装すべてリノベーション工事を行っております。外壁塗装や天井の補修の他、床・壁・天井の張替は勿論、システムキッチン・浴室・洗面・トイレなどの水回りや給湯器などの設備もすべて新調されております。築年数を感じさせない仕上りとなっております。延べ床面積84㎡に、3LDKの間取りを配置、トイレは1・2階の2箇所、バルコニーは3階に設置されております。室内設置の小物や家具は、ディスプレイ用にて撤去されます。

物件種別
売買 戸建
所在地
神戸市灘区記田町4丁目
交通
阪神電鉄本線 / 石屋川駅
バス / 徒歩
分 / 8分
価格
4190万円
土地面積 / 私道負担
81.16m2 / 36.19m2
建物面積
84.45m2
間取
3LDK
建蔽率 / 容積率
60% / 160%
建物構造
木造3階建
築年月
1998年 12月
用途地域
一種住居
現況 / 引渡
空家 / 相談
小学校区
成徳小学校
中学校区
鷹匠中学校
備考
駐車スペース1台あり
北側幅員約3.5m私道に接道
自治会費1000円/年

駅周辺情報

コンビニ
セブンイレブン神戸記田町3丁目店:徒歩6分(400m)
スーパー
阪急オアシス御影店:徒歩7分(600m)
スーパー
阪急オアシス石屋川店:徒歩9分(650m)
ショッピングセンター
御影クラッセ:徒歩8分(650m)
ドラッグストア
ココカラファイン御影クラッセ店:徒歩8分(650m)
ドラッグストア
スギドラッグ石屋川店:徒歩9分(650m)
会館
御影公会堂:徒歩5分(350m)
交番
石屋川交番:徒歩1分(60m)
保育所
浜御影保育所:徒歩9分(700m)
保育園
石屋川くるみ保育園:徒歩5分(400m)
幼稚園
御影幼稚園:徒歩5分(450m)
小学校
御影小学校:徒歩3分(270m)
中学校
御影中学校:徒歩6分(550m)
高校
御影高校:徒歩8分(700m)
コンビニ
ローソン神戸記田町4丁目店:徒歩7分(500m)
銀行
尼崎信用金庫神戸東支店:徒歩6分(450m)
郵便局
東明郵便局:徒歩9分(700m)
古墳
処女塚古墳:徒歩6分(450m)
神社
東明八幡宮:徒歩6分(450m)
ホームセンター
ニトリ神戸御影店:徒歩14分(1000m)
家電量販店
エディオン御影店:徒歩11分(800m)
ショッピングセンター
サザンモール六甲:徒歩15分(1100m)

近い条件の物件


最近チェックした物件