新築一戸建 神戸 灘区篠原中町4丁目

更新日:2025年11月18日 
次回更新予定日:2025年12月2日

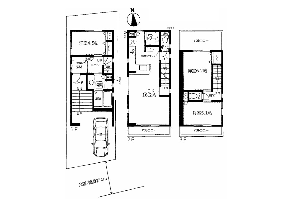
阪急六甲駅を西へ約700m、徒歩9分ほどのアクセスとなります。篠原公園東側付近のエリア、周辺は一戸建て住宅が建ち並ぶ閑静な住宅街となっております。本物件は、南側4m幅員の道路に面した木造三階建新築分譲住宅、1区画の販売です。1台分の車庫が付いておりますが、サイズの制限がございます。延べ床面積85㎡に、3LDKの間取りを配置、3階は、南北両面にバルコニー設置されております。キッチンはコンパクトな動線が可能なL型、背面に大容量のパントリーが付いているのがおすすめです。耐震等級2、断熱等級4の仕様にて、各種税制の特例も受けれます。

物件種別
売買 戸建
所在地
神戸市灘区篠原中町4丁目
交通
阪急電鉄神戸線 / 六甲駅
バス / 徒歩
分 / 9分
価格
5680万円
土地面積 / 私道負担
65.48m2 / 0m2
建物面積
85.39m2
間取
3LDK
建蔽率 / 容積率
70% / 160%
建物構造
木造3階建
築年月
2025年 9月
用途地域
一種中高
現況 / 引渡
完成済 / 相談
小学校区
六甲小学校
中学校区
長峰中学校
備考
建築確認番号 第J24-20629号
駐車スペースあり(サイズ制限有り)

駅周辺情報

スーパー
阪急オアシス:徒歩1分(24m)
スーパー
いかりスーパー:徒歩2分(88m)
コンビニ
ローソン阪急六甲店:徒歩1分(24m)
ショッピングセンター
サザンモール六甲:徒歩23分(1600m)
ホームセンター
コーナン灘大石川店:徒歩20分(1500m)
銀行
三井住友銀行:徒歩1分(37m)
銀行
池田泉州銀行:徒歩2分(130m)
郵便局
神戸篠原郵便局:徒歩7分(550m)
保育所
やはた桜保育所:徒歩7分(450m)
保育園
同朋保育園:徒歩15分(1200m)
幼稚園
六甲幼稚園:徒歩3分(210m)
小学校
六甲小学校:徒歩5分(350m)
中学校
長峰中学校:徒歩21分(1600m)
高校
六甲学院高等学校:徒歩26分(1300m)
高校
親和女子高校:徒歩14分(1100m)
大学
神戸大学:徒歩15分(1300m)
大学
神戸松蔭女子学院大学:徒歩14分(1200m)
神社
六甲八幡神社:徒歩2分(150m)
コンビニ
ファミリーマート灘神前町店:徒歩9分(700m)
ドラッグストア
コクミンドラッグ:徒歩1分(11m)
交番
灘警察署八幡交番:徒歩4分(400m)

近い条件の物件


最近チェックした物件