御影小学校近くのリノベ 70㎡ 3階 南向き 4380万円

更新日:2025年2月3日

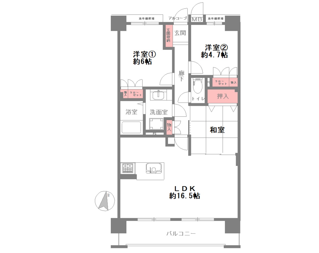
阪神御影駅を西へ約400m、徒歩5分ほどのアクセスとなります。御影小学校南側付近のエリアです。阪神石屋川駅へも徒歩4分ほどです。平成9年建築(築後28年経過)の7階建、総戸数20戸の小規模マンション、このたび3階部分、南向きのお部屋をリノベーションしました。床・壁・天井の張替は勿論、システムキッチン・浴室・洗面所・トイレ・給湯器などの設備もすべて新調されております。白を基調とした清潔感溢れる仕上がりとなっております。専有面積70㎡に、3LDKの間取りを配置、16.5帖サイズのLDKは、広く南バルコニーに面しており、採光や通気性は十分に確保されております。北側30mほどに阪神電車の軌道がございますが、電車通過音はそれほど気になるものではありません。御影小学校へ約50mほど、御影中学校へ約250mという近さは嬉しいものです。

関連リンク