132㎡ 1-2階メゾネット形式中古マンション 4980万円

更新日:2025年2月23日

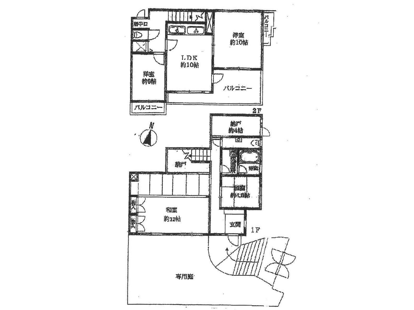
阪急六甲駅を北西へ約220m、徒歩3分ほどのアクセスとなります。駅前立地、周辺にはそれほど商業施設がございませんので、喧噪感がない立地となります。昭和59年建築(築後41年経過)の5階建て、総戸数17戸の小規模マンション、このたび1ー2階のメゾネットタイプが売り出されました。玄関も専用にて、小規模な日本庭園風のお庭もございます。延べ床面積132㎡に、4LDKの間取りを配置、1階に和室12帖の板の間のあるお稽古部屋のような広いお部屋があるのが特徴的です。お風呂・洗面所は1階、LDKは2階に配置されております。2階バルコニーも広々しており、採光や通気性は十分に確保されております。水回り等の設備は交換されておりませんので、新調が必要かもしれません。

関連リンク