専用通路に2台分の駐車が可能な新築一戸建 5298万円

更新日:2025年3月2日

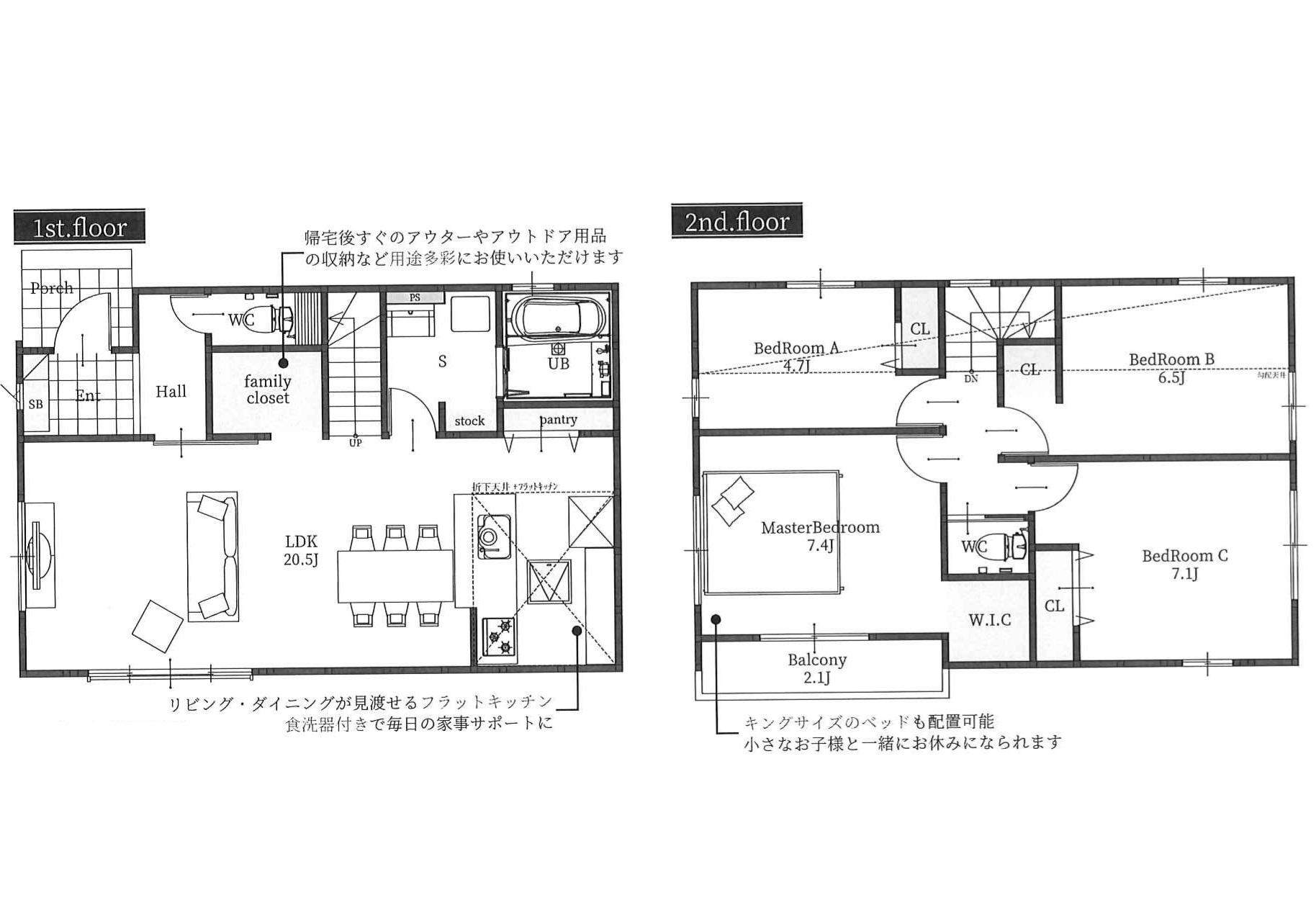
阪急御影駅を北へ約1.2キロ、かなりの登り勾配の道程で徒歩25分ほど、下りは徒歩18分ほどのアクセスとなります。バス便でのアクセスもございます。山の手の住宅街、木造2階建の一戸建て住宅が建ち並ぶ、閑静な住環境です。本物件は、北側6m幅員の道路に面した木造2階建新築分譲住宅2区画販売の、後列の棟です。幅員3mほどの専用の通路箇所に縦列で2台分の駐車が可能です。延べ床面積106㎡に、4LDKの間取りを配置、トイレは1・2階にそれぞれ、バルコニーは2階の南西角にあり、神戸港を見渡せる素敵な景観を楽しめます。1階は20.5帖サイズのLDKと洗面・お風呂の水回りがコンパクトに配置されております。2階には4つの洋室、それぞれ独立性の高い間取り配置です。隣接住宅との距離感もあり、採光や通気性は十分に確保されております。

関連リンク