高羽小学校近く 木造3階建新築分譲住宅 高羽町 5480万円

更新日:2025年6月9日

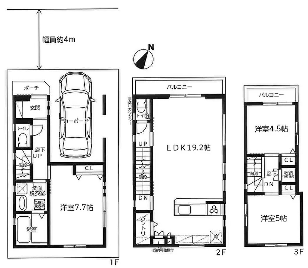
阪急六甲駅を北東へ約800m、徒歩10分ほどのアクセスとなります。高羽小学校近く、周辺は木造2階建住宅が建ち並ぶ、住宅街となっております。本物件は、北側4m幅員の道路に面した木造3階建新築分譲住宅、1区画の販売です。ビルトインの駐車場が1台分ございますが、前面道路幅等により、車種の制限がございます。延べ床面積101㎡(車庫面積含む)に、3LDKの間取りを配置、バルコニーは2階・3階の2箇所、トイレは1階・2階の2箇所に設置されております。19帖サイズのLDKはとてもゆったりとしており、キッチン背面には大容量の食器棚、そして横には大容量のパントリーが設置されているのが嬉しいものです。1階7.7帖サイズの主寝室もゆとりの広さです。高羽小学校へ約150mほどの近さも嬉しいものです。

関連リンク