南側8m道路に面した新築一戸建 篠原南町4丁目 6480万円

更新日:2025年7月26日

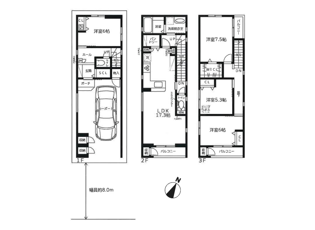
阪急六甲駅を南西へ約800m、徒歩10分ほどのアクセスとなります。周辺は一戸建ての住宅の他、小規模な店舗や事務所などが混在するエリアです。本物件は、南側8m幅員の道路に面した木造3階建新築分譲住宅、1区画の販売です。ビルトインの駐車場が1台分付いております。延べ床面積124㎡に、4LDKの間取りを配置、トイレは1・2階に、ベルコニーは2・3階に設置されております。駐車場横、外部収納・シューズクローク・キッチン奥のパントリー・3階洋室7帖の主寝室にはウォークインクローゼット・バルコニー横収納など、収納に拘った設計がおすすめです。駐車場スペースには、駐輪も可能なスペースがございます。前面道路は広めですが、交通量はそれほどなく、車両通過音は気になりません。ボックス形状の外観はシャープな感じがします。

関連リンク