本山第二小学校近く 気密性の高い新築戸建 西岡本6780万円

更新日:2025年11月3日

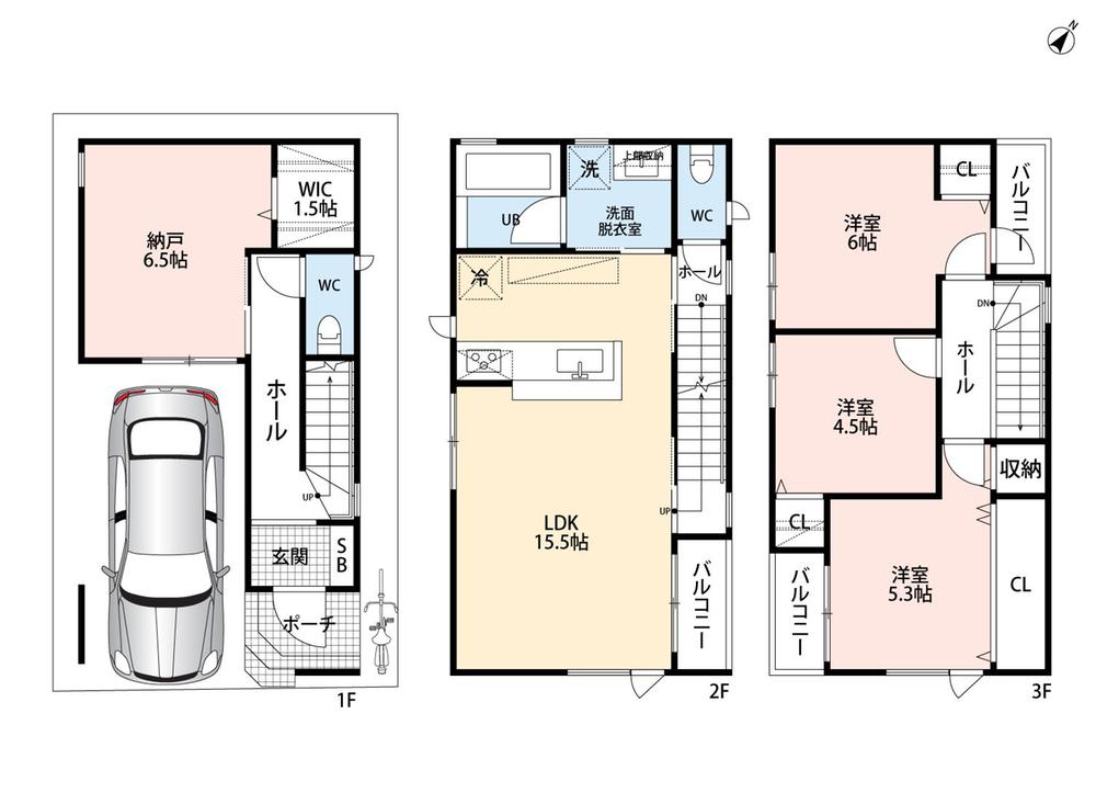
JR住吉駅を東へ約700m、徒歩9分ほどのアクセスとなります。住吉川東岸、JR線の道路を挟んだすぐ北側の立地となります。よって電車通過音がします。木造3階建新築分譲住宅2区画の販売の東側、南向きです。ビルトインの駐車場が1台分付いております。延べ床面積112㎡(車庫面積含む)に、4LDKの間取りを配置、洗面所・浴室・キッチンなどの水回りは2階部分にございます。バルコニーが、2階に1か所、3階に2箇所ございます。トイレは1階と2階の2箇所に設置されております。各部屋は独立性が高く、4~5人のご家族様での居住が可能な設計です。太陽光発電パネルが設置されおります。本山第二小学校へ約350m、本山中学校へ約600mほどの近さも嬉しいものです。

関連リンク