神戸大学近く 102㎡ 最上階 南向きのリノベ 4680万円

更新日:2025年11月25日

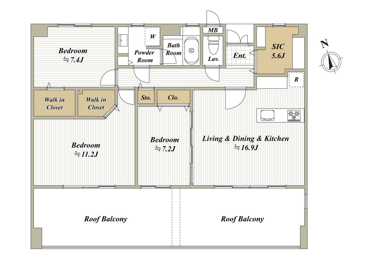
阪急六甲駅を北へ約1キロ、登り勾配の道程ですでの徒歩15分ほど、下りは徒歩12分ほどのアクセスとなります。鶴甲団地行きのバス路線もございます。山の手住宅街、神戸大学のキャンパスに近い立地です。平成10年建築(築後27年経過)の8階建て、総戸数26戸の小規模マンション、このたび7階部分(最上階)、南向きのお部屋をリノベーションしました。床・壁・天井の張替は勿論、システムキッチン・浴室・洗面・トイレなどの水回りや給湯器などの設備もすべて新調されております。専有面積102㎡に、3LDKの間取りを配置、南バルコニーに広く展開した間取り配置で、開放的な眺望を楽しめるのが一番のおすすめです。ウォークインクローゼットや原価にょこのシューズクロークなど、収納の多さが魅力的です。

関連リンク