西側道路の新築一戸建 ブラックな外観 神ノ木通 5180万円

更新日:2026年1月24日

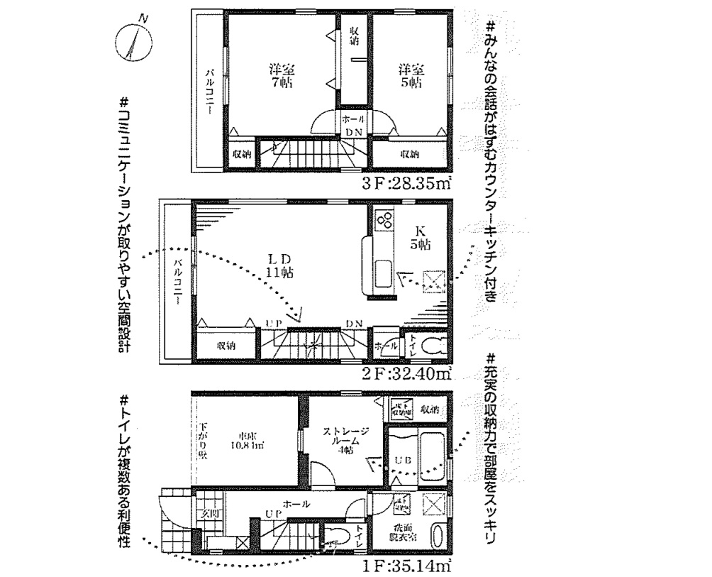
阪神大石駅を北へ約800m、徒歩10分ほど、JR六甲道駅を西へ約1キロ、徒歩13分ほど、阪急六甲駅を南西へ約1キロほど、徒歩13分ほど、3つの駅へのアクセスが可能な立地です。周辺は一戸建て住宅の他、分譲や賃貸のマンションなどが混在するエリアです。本物件は、西側3m幅員の道路に面した木造3階建新築分譲住宅、2区画販売の南側の棟です。ビルトインの駐車スペースが1台分ございます。お車の大きさの制限がございます。延べ床面積95㎡(車庫面積含む)に、3LDKの間取りを配置、トイレは1階と2階に、バルコニーが2階と3階に設置されております。また、各お部屋に1帖サイズほどの収納があるのが嬉しいものです。灘小学校へ250mほどの近さも快適です。

関連リンク