都賀川東付近 木造3階建新築分譲住宅 C号地 6280万円

更新日:2026年2月7日

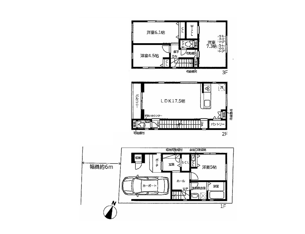
阪神大石駅を北へ約750m、徒歩11分ほど、JR六甲道駅を北西へ約950m、徒歩12分ほどのアクセスとなります。都賀川の少し東側のエリア、周辺は一戸建て住宅の他、賃貸や分譲などのマンションが混在する住宅街です。本物件は、西側6m幅員の道路に面した木造3階建新築分譲住宅、3区画販売の一番北側の棟です。ブラックな外観が象徴的です。延べ床面積111㎡(車庫面積含む)に、4LDKの間取りを配置、ビルトインの駐車場が1台分ございます。トイレは2階・3階の2箇所にございます。駐車場横・外部収納、シューズクローク、キッチン横パントリー、主寝室のウォークインクローゼットなど、収納に拘りをもった設計となっております。また主寝室の天井、トップライトも特徴的です。

関連リンク