阪急御影駅歩7分 100㎡ 3階 東南角のリノベ8480万円

更新日:2026年2月8日

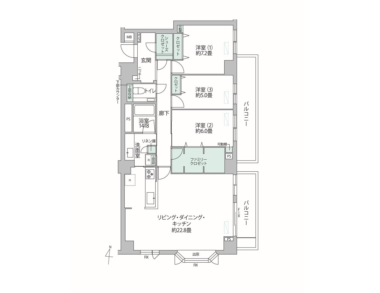
阪急御影駅を南へ約450m、徒歩7分ほど、阪神御影駅を北へ約900m、徒歩11分ほど、JR住吉駅を北西へ約1キロ、徒歩13分ほどと、3つの駅へのアクセスが可能な立地です。平成5年建築(築後33年経過)の7階建、総戸数20戸の小規模マンション、このたび3階部分、東南角のお部屋をリノベーションしました。床・壁・天井の張替は勿論、システムキッチン・浴室・洗面・トイレなどの水回りや給湯器などの設備もすべて新調されております。専有面積100㎡に、ゆったりと3LDKの間取りを配置、22.8帖サイズのLDKは、かなりの広さで、南・東の2面採光となっております。東側が弓場線という幹線道路ですので、車両通行音が若干します。シューズインクロークと、ファミリークロゼットという大容量の収納もおすすめです。キッチン横から洗面所・浴室への家事動線がコンパクトなのも便利です。御影北小学校・御影中学校へいずれも500mほどの距離も嬉しいものです。

関連リンク