中古マンション 神戸 東灘区御影1丁目

更新日:2026年4月13日 
次回更新予定日:2026年4月27日

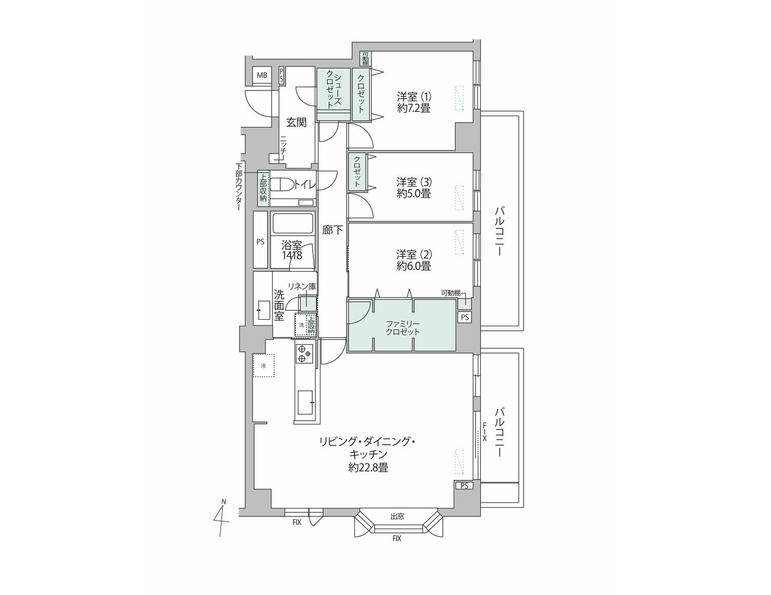
阪急御影駅を南へ約450m、徒歩7分ほど、阪神御影駅を北へ約900m、徒歩11分ほど、JR住吉駅を北西へ約1キロ、徒歩13分ほどと、3つの駅へのアクセスが可能な立地です。平成5年建築(築後33年経過)の7階建、総戸数20戸の小規模マンション、このたび3階部分、東南角のお部屋をリノベーションしました。床・壁・天井の張替は勿論、システムキッチン・浴室・洗面・トイレなどの水回りや給湯器などの設備もすべて新調されております。専有面積100㎡に、ゆったりと3LDKの間取りを配置、22.8帖サイズのLDKは、かなりの広さで、南・東の2面採光となっております。東側が弓場線という幹線道路ですので、車両通行音が若干します。シューズインクロークと、ファミリークロゼットという大容量の収納もおすすめです。キッチン横から洗面所・浴室への家事動線がコンパクトなのも便利です。御影北小学校・御影中学校へいずれも500mほどの距離も嬉しいものです。

物件種別
売買 マンション
マンション名
御影城ノ前パークマンション
所在地
神戸市東灘区御影1丁目
交通
阪急電鉄神戸線 / 御影駅
バス / 徒歩
分 / 7分
価格
8180万円
管理費 / 積立金
25100円 / 15820円
間取
3LDK
専有面積
100.76m2
建物構造
RC造7階建3階部分
総戸数
20戸
築年月
1993年 9月
用途地域
二種中高
現況 / 引渡
空家 / 相談
小学校区
御影北小学校
中学校区
御影中学校
備考
駐車場専用使用権29000円/月

駅周辺情報

財界人や文化人などの豪壮な邸宅建築が多く、市内随一の高級住宅街である。美術館や洋菓子店も多い。2008年には駅の南西に達していた市道弓場線が延伸され、ホーム西側の線路との立体交差が完了。同時に従来の南口に加えて、北口にもロータリーが整備された。
なお、阪神本線の御影駅やJR神戸線・六甲ライナーの住吉駅とは約1.2キロメートルの距離がある(南へ徒歩約15分)

スーパー
ライフ御影店:徒歩4分(350m)
スーパー
いかりスーパー御影店:徒歩12分(950m)
スーパー
阪急オアシス御影店:徒歩17分(1300m)
ショッピングセンター
御影クラッセ:徒歩18分(1300m)
コンビニ
ファミリーマート阪急御影駅前店:徒歩1分(26m)
児童館
御影北児童館:徒歩5分(350m)
コンビニ
ローソン阪急御影駅前:徒歩1分(79m)
コンビニ
セブンイレブン神戸御影2丁目店:徒歩3分(200m)
公園
郡家公園:徒歩3分(210m)
警察署
東灘警察署:徒歩13分(1000m)
ホームセンター
ニトリ:徒歩23分(1700m)
家電量販店
エディオン御影店:徒歩20分(1500m)
銀行
みなと銀行:徒歩2分(78m)
公園
深田池公園:徒歩2分(110m)
ATM
三井住友銀行:徒歩2分(110m)
郵便局
上御影郵便局:徒歩1分(89m)
保育所
御影保育所:徒歩13分(1000m)
保育園
御影のどか保育園:徒歩8分(600m)
幼稚園
郡華幼稚園:徒歩7分(500m)
小学校
御影北小学校:徒歩6分(500m)
中学校
御影中学校:徒歩15分(1100m)
短期大学
頌栄短期大学:徒歩9分(700m)
幼稚園
頌栄幼稚園:徒歩14分(800m)
美術館
香雪美術館:徒歩6分(450m)
美術館
世良美術館:徒歩4分(280m)
美術館
白鶴美術館:徒歩15分(1200m)
病院
甲南医療センター:徒歩20分(1000m)
神社
弓弦羽神社:徒歩5分(400m)
高校
御影高校:徒歩14分(1100m)

近い条件の物件


最近チェックした物件