(借地権)新築一戸建 神戸 東灘区住吉山手9丁目

更新日:2025年12月14日 
次回更新予定日:2025年12月28日

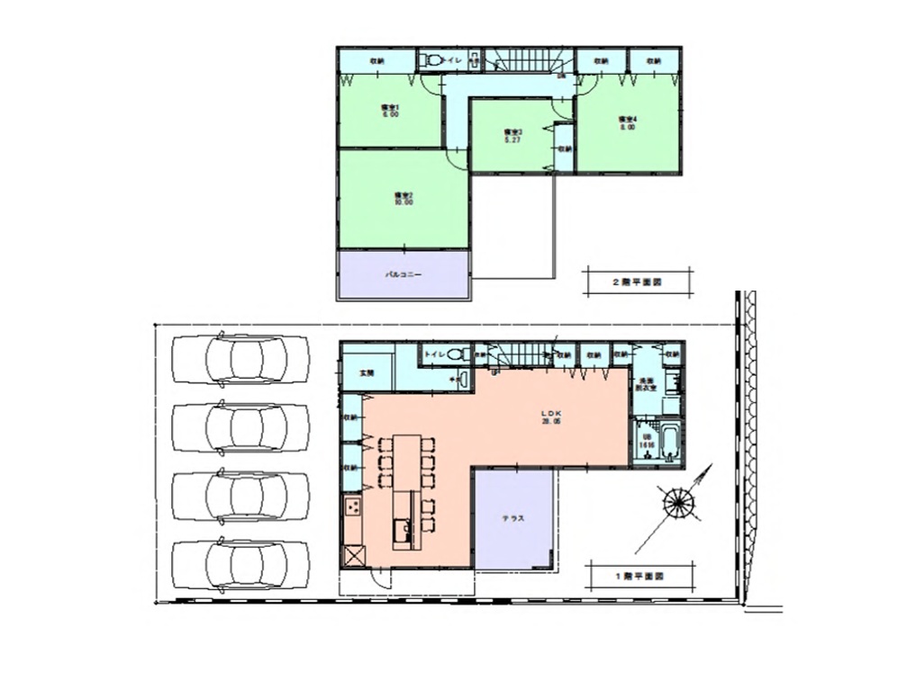
JR住吉駅よりバス乗車約11分、渦森橋バス停より徒歩3分ほどのアクセスとなります。山の手のエリア、周辺は木造2階建の一戸建が建ち並ぶ、閑静な住宅街となっております。本物件は、西側4.4m、南側3m幅員の道路に面した南西角に位置しております。土地は住吉学園の借地権となり、月額13048円の借地料が必要です。借地の期限はなく、更新されます。延べ床面積140㎡に、4LDKの間取りを配置、お庭にテラスがあり、外部応接間として、御利用出来そうです。敷地面積が60坪ほどありますので、白砂をまいたスペースもございます。3階には4つの洋室が、独立した配置になされております。主寝室10帖にはバルコニーもあり、神戸港を見渡す景観を楽しめます。建物前面スペースに、3~4台分の駐車スペースもございます。室内設置の小物や家具は、ディスプレイ用にて、撤去されます。

物件種別
売買 戸建
所在地
神戸市東灘区住吉山手9丁目
交通
東海道本線 / 住吉駅
バス / 徒歩
11分 / 3分
価格
4980万円
土地面積 / 私道負担
200.44m2 / 0m2
建物面積
140.71m2
間取
4LDK
建蔽率 / 容積率
50% / 100%
建物構造
木造2階建
築年月
2025年 7月
用途地域
一種低層
現況 / 引渡
完成済 / 相談
小学校区
渦が森小学校
中学校区
住吉中学校
備考
南西側幅員約4.5m公道に約9.9m接道
借地料13048円/月
借地期間2037年3月31日迄
駐車スペース4台あり(車種による)

駅周辺情報

コンビニ
セブンイレブン神戸JR住吉駅前店:徒歩1分(43m)
ショッピングセンター
Liv:徒歩1分(45m)
ショッピングセンター
KiLaLa住吉:徒歩2分(130m)
スーパー
Seer:徒歩1分(57m)
スーパー
KOHYO住吉店:徒歩1分(100m)
タクシー乗り場
駅南側:徒歩1分(25m)
タクシー乗り場
駅北側:徒歩1分(50m)
郵便局
東灘郵便局:徒歩6分(400m)
銀行
三井住友銀行:徒歩5分(300m)
銀行
みなと銀行:徒歩1分(48m)
銀行(ATM)
三菱UFJ銀行:徒歩2分(82m)
警察
東灘警察:徒歩8分(600m)
神社
本住吉神社:徒歩2分(160m)
ホームセンター
ニトリ神戸御影店:徒歩15分(1100m)
ホームセンター
コープリビング甲南:徒歩19分(1500m)
ホームセンター 
ロイヤルホームセンター東灘魚崎店:徒歩18分(1300m)
家電量販店
エディオン御影店:徒歩17分(1300m)
保育所
住吉公園保育所:徒歩6分(450m)
保育園
住吉むつみ保育園分園:徒歩3分(270m)
幼稚園
住吉学園幼稚園:徒歩10分(650m)
幼稚園
甲南幼稚園:徒歩7分(600m)
幼稚園
親和保育園:徒歩9分(800m)
小学校
住吉小学校:徒歩7分(450m)
小学校
甲南小学校:徒歩7分(600m)
中学校
住吉中学校:徒歩10分(900m)
中学校
神戸大学附属中等教育学校:徒歩24分(2000m)
中学校・高校
灘中学校・高校:徒歩12分(850m)
高校
御影高校:徒歩14分(1100m)
大学
甲南大学:徒歩21分(1800m)
区役所
東灘区役所:徒歩5分(400m)

近い条件の物件


最近チェックした物件