新築一戸建 神戸 灘区薬師通4丁目

更新日:2025年11月25日 
次回更新予定日:2025年12月9日

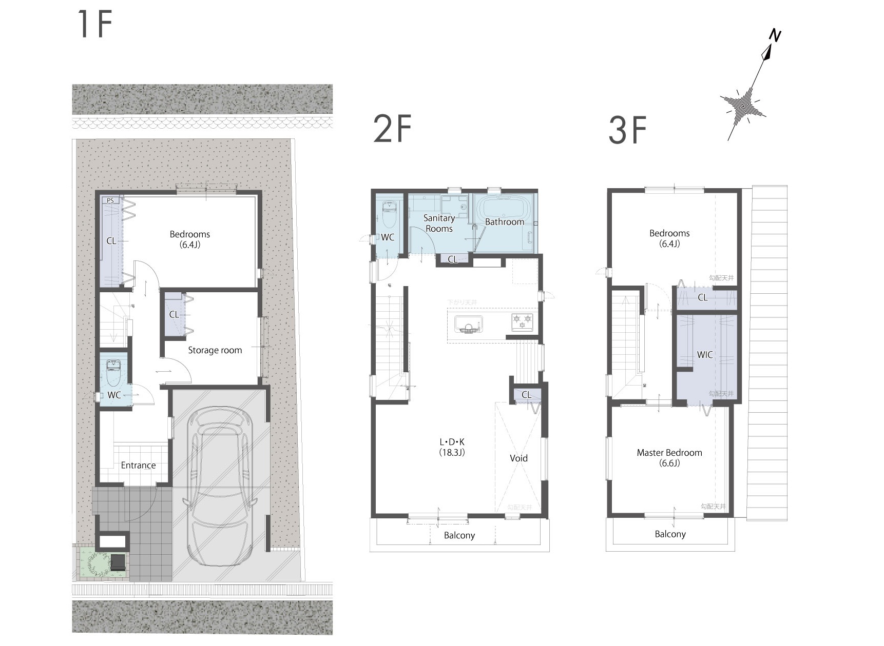
阪急王子公園駅を北東へ約1キロ、登り勾配の道程ですので、登りは徒歩18分ほど、下りは徒歩14分ほどのアクセスとなります。摩耶ケーブル下で著名な「桜のトンネル」の近くの立地です。南側6m幅員の道路に面した木造3階建新築分譲住宅2区画販売の東側の棟です。ビルトインの駐車場が1台分付いております。延べ床面積121㎡(車庫面積含む)に、3LDK+納戸の間取りを配置、トイレは1・2階の2箇所、バルコニーは2・3階の2箇所に設置されております。グレーの外観が象徴的で、上質な仕様の仕上がりとなっております。3階の屋根勾配が、斜線規制により若干斜めになっておりますが、それほど圧迫感はございません。3階洋室6.6帖に設置されていますウォークインクローゼットは3帖サイズの大容量です。また1階の大容量の納戸はお部屋としてもご利用可能です。

物件種別
売買 戸建
所在地
神戸市灘区薬師通4丁目(2号地)
交通
阪急電鉄神戸線 / 王子公園駅
バス / 徒歩
分 / 13分
価格
6320万円
土地面積 / 私道負担
79.3m2 / 1.68m2
建物面積
121.49m2
間取
3SLDK
建蔽率 / 容積率
60% / 150%
建物構造
木造3階建
築年月
2025年 5月
用途地域
一種低層
現況 / 引渡
完成済 / 相談
小学校区
摩耶小学校
中学校区
上野中学校
備考
南東側幅員約6.3m公道に約6.4m接道
北西側幅員約3.5m私道に約6.1m接道
駐車スペースあり
建築確認番号 第R06確更建築近確0000157号

駅周辺情報

商店街
水道筋商店街:徒歩7分(500m)
スーパー
マルハチ:徒歩5分(350m)
コンビニ
セブンイレブン:徒歩1分(85m)
銀行
みずほ銀行:徒歩8分(600m)
銀行
みなと銀行:徒歩8分(650m)
信用金庫
神戸信用金庫:徒歩7分(550m)
郵便局
灘駅前郵便局:徒歩2分(170m)
スポーツセンター
王子スポーツセンター:徒歩3分(210m)
動物園
王子動物園:徒歩5分(450m)
美術館
兵庫県立美術館原田の森ギャラリー:徒歩6分(500m)
美術館
横尾忠則現代美術館:徒歩7分(600m)
ドラッグストア
ライフォート水道筋店:徒歩6分(500m)
保育所
倉石保育所:徒歩5分(400m)
保育園
花音つばさこども園:徒歩3分(240m)
幼稚園
ランバス記念幼稚園:徒歩4分(350m)
小学校
稗田小学校:徒歩6分(400m)
中学校
原田中学校:徒歩18分(1300m)
中学校・高校
神戸海星女子学院中学校・高校:徒歩11分(950m)
中学校・高校
松蔭中学校・高校:徒歩13分(1200m)
高校
神戸高校:徒歩13分(1100m)
高校
葺合高校:徒歩12分(1000m)
大学
神戸海星女子学院大学:徒歩11分(1000m)
ホームセンター
コーナン灘大石川店:徒歩19分(1400m)
JR
灘駅:徒歩7分(500m)
警察署
灘警察署:徒歩13分(1000m)
交番
水道筋交番:徒歩7分(550m)
神社
王子神社:徒歩5分(300m)
神社
稗田水神社:徒歩8分(600m)
家電量販店
ケーズデンキHAT神戸店:徒歩19分(1400m)
家電量販店
ヤマダデンキ神戸本店:徒歩22分(1700m)

近い条件の物件


最近チェックした物件