新築一戸建 神戸 灘区神ノ木通3丁目

更新日:2026年2月27日 
次回更新予定日:2026年3月13日

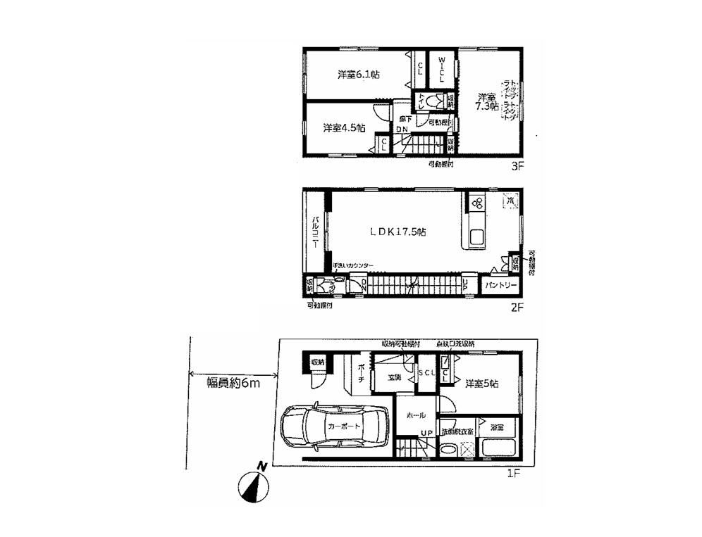
阪神大石駅を北へ約750m、徒歩11分ほど、JR六甲道駅を北西へ約950m、徒歩12分ほどのアクセスとなります。都賀川の少し東側のエリア、周辺は一戸建て住宅の他、賃貸や分譲などのマンションが混在する住宅街です。本物件は、西側6m幅員の道路に面した木造3階建新築分譲住宅、3区画販売の一番北側の棟です。ブラックな外観が象徴的です。延べ床面積111㎡(車庫面積含む)に、4LDKの間取りを配置、ビルトインの駐車場が1台分ございます。トイレは2階・3階の2箇所にございます。駐車場横・外部収納、シューズクローク、キッチン横パントリー、主寝室のウォークインクローゼットなど、収納に拘りをもった設計となっております。また主寝室の天井、トップライトも特徴的です。

物件種別
売買 戸建
所在地
神戸市灘区神ノ木通3丁目(C号地)
交通
阪神電鉄本線 / 大石駅
バス / 徒歩
分 / 11分
価格
6280万円
土地面積 / 私道負担
57.2m2 / 0m2
建物面積
111.62m2
間取
4LDK
建蔽率 / 容積率
60% / 200%
建物構造
木造3階建
築年月
2025年 11月
用途地域
一種住居
現況 / 引渡
完成済み / 相談
小学校区
灘小学校
中学校区
原田中学校
備考
西側幅員約5.9m公道に約5.3m接道
建築確認番号 第J25-20003号
駐車スペース1台あり

駅周辺情報

コンビニ
ファミリーマート阪神大石駅前店:徒歩1分(78m)
JR
摩耶駅:徒歩11分(750m)
ホームセンター
コーナン灘大石川店:徒歩3分(250m)
ホームセンター
コーナンPRO新在家店:徒歩14分(1100m)
ショッピングセンター
サザンモール六甲:徒歩16分(1300m)
銀行
徳島大正銀行神戸支店:徒歩2分(160m)
信用金庫
淡路信用金庫灘支店:徒歩2分(120m)
郵便局
神戸西郷郵便局:徒歩5分(350m)
郵便局
灘郵便局:徒歩7分(550m)
交番
大石交番:徒歩3分(240m)
税務署
灘税務署:徒歩7分(550m)
保育園
おおいしこども園:徒歩5分(400m)
幼稚園
神戸市立灘すずかけ幼稚園:徒歩4分(290m)
小学校
西郷小学校:徒歩3分(210m)
中学校
原田中学校:徒歩4分(300m)
公園
西灘公園:徒歩3分(210m)
日本酒醸造所
沢の鶴資料館:徒歩8分(600m)
神社
船寺神社:徒歩2分(130m)

近い条件の物件


最近チェックした物件