新築一戸建 神戸 灘区青谷町3丁目

更新日:2026年4月30日 
次回更新予定日:2026年5月14日

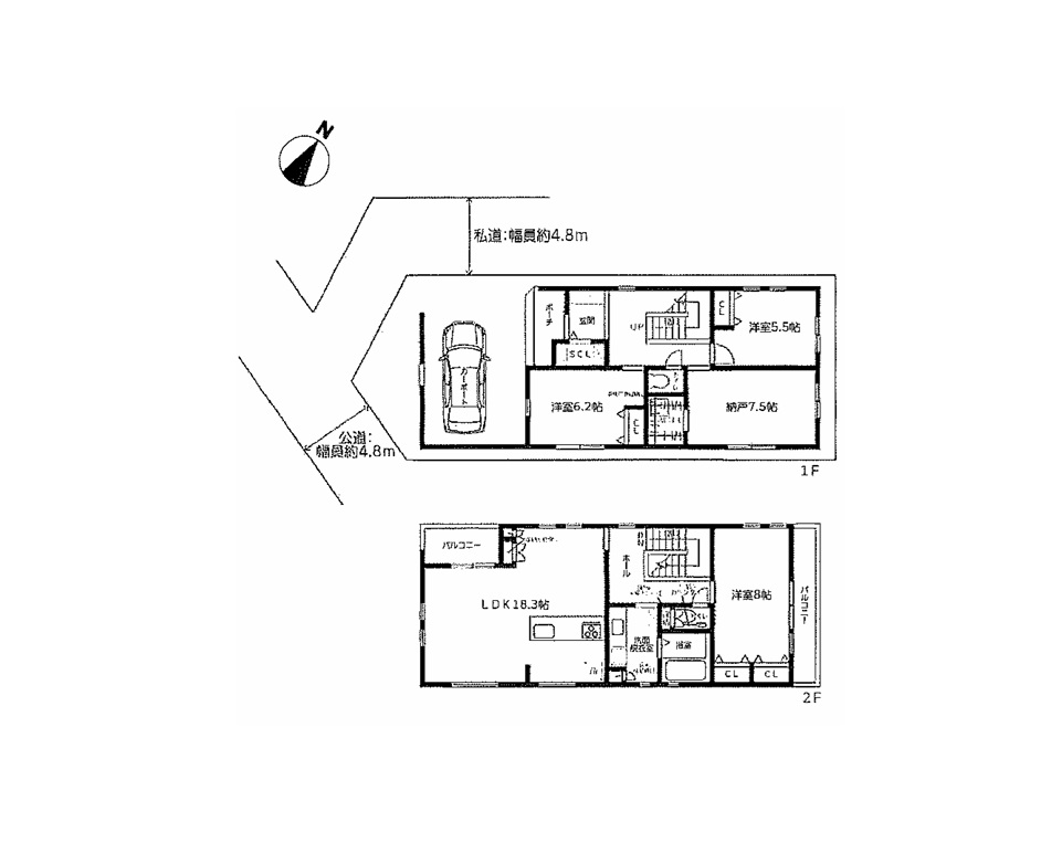
阪急王子公園駅を北へ約900m、登り勾配の道程ですので、登りは徒歩13分ほど、下りは徒歩11分ほどのアクセスとなります。王子動物園山の手、松陰女子学園東側付近の立地です。周辺は木造2階建住宅が建ち並ぶ、閑静な住宅街となっております。本物件は、西側4.8m道路、北側4.8幅員の私道に、面した北西角になります。木造2階建新築分譲住宅、1区画の販売です。ビルトインの駐車場が1台分付いております。延べ床面積134㎡(車庫面積含む)に、4LDKの間取りを配置、2階がLDKとなっております。キッチン背面に、大容量の食器棚、玄関横のシューズインクローク、1階7.5帖洋室のウォークインクローゼットなど、各所に収納がたっぷりございます。前面私道からの出入りは、道路が隅切りとなっており、窮屈感なく、たやすく出入り可能なのも、おすすめです。室内設置の小物や家具は、ディスプレイ用にて、撤去されます。

物件種別
売買 戸建
所在地
神戸市灘区青谷町3丁目
交通
阪急電鉄神戸線 / 王子公園駅
バス / 徒歩
分 / 12分
価格
6780万円
土地面積 / 私道負担
98.19m2 / 18.09m2
建物面積
134.05m2
間取
4LDK
建蔽率 / 容積率
60% / 160%
建物構造
木造2階建
築年月
2025年 9月
用途地域
一種低層
現況 / 引渡
空家 / 相談
小学校区
上筒井小学校
中学校区
筒井台中学校
備考
建築確認番号 第J24-20679号
南西側幅員約4.8m公道に接道
北西側幅員約4.8m私道に接道
南西角地
駐車スペース1台あり

駅周辺情報

商店街
水道筋商店街:徒歩7分(500m)
スーパー
マルハチ:徒歩5分(350m)
コンビニ
セブンイレブン:徒歩1分(85m)
銀行
みずほ銀行:徒歩8分(600m)
銀行
みなと銀行:徒歩8分(650m)
信用金庫
神戸信用金庫:徒歩7分(550m)
郵便局
灘駅前郵便局:徒歩2分(170m)
スポーツセンター
王子スポーツセンター:徒歩3分(210m)
動物園
王子動物園:徒歩5分(450m)
美術館
兵庫県立美術館原田の森ギャラリー:徒歩6分(500m)
美術館
横尾忠則現代美術館:徒歩7分(600m)
ドラッグストア
ライフォート水道筋店:徒歩6分(500m)
保育所
倉石保育所:徒歩5分(400m)
保育園
花音つばさこども園:徒歩3分(240m)
幼稚園
ランバス記念幼稚園:徒歩4分(350m)
小学校
稗田小学校:徒歩6分(400m)
中学校
原田中学校:徒歩18分(1300m)
中学校・高校
神戸海星女子学院中学校・高校:徒歩11分(950m)
中学校・高校
松蔭中学校・高校:徒歩13分(1200m)
高校
神戸高校:徒歩13分(1100m)
高校
葺合高校:徒歩12分(1000m)
大学
神戸海星女子学院大学:徒歩11分(1000m)
ホームセンター
コーナン灘大石川店:徒歩19分(1400m)
JR
灘駅:徒歩7分(500m)
警察署
灘警察署:徒歩13分(1000m)
交番
水道筋交番:徒歩7分(550m)
神社
王子神社:徒歩5分(300m)
神社
稗田水神社:徒歩8分(600m)
家電量販店
ケーズデンキHAT神戸店:徒歩19分(1400m)
家電量販店
ヤマダデンキ神戸本店:徒歩22分(1700m)

近い条件の物件


最近チェックした物件