新築一戸建 神戸 灘区灘南通5丁目

更新日:2026年3月22日 
次回更新予定日:2026年4月5日

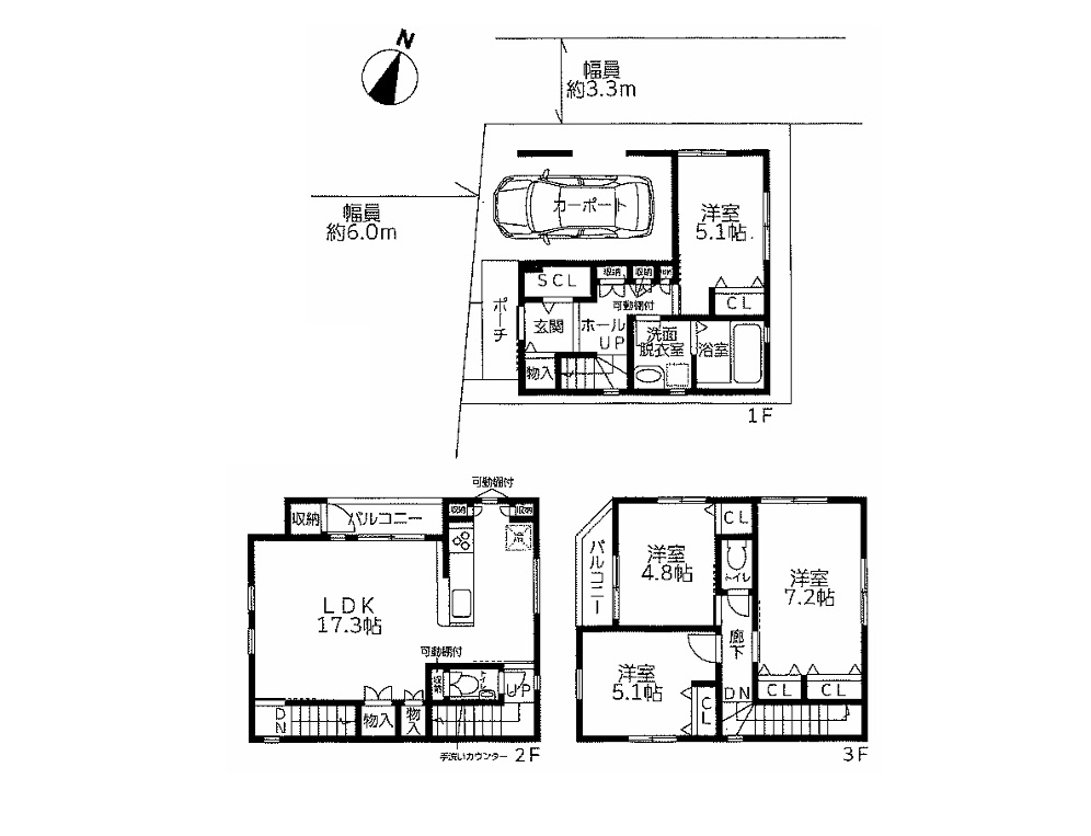
JR摩耶駅を南西へ約150m、徒歩2分ほど、阪神西灘駅を北へ約200m、徒歩3分ほどのアクセスとなります。駅近い立地で、周辺は一戸建て住宅の他、小規模な賃貸マンションなどが混在する住宅街です。本物件は、西側6m幅員、北側3m幅員の北西角に面しており、3区画の新築分譲住宅販売の、一番北側の棟です。ビルトインの駐車場が1台分付いております。延べ床面積112㎡(車庫面積含む)に、4LDKの間取りを配置、トイレは2階と3階の2箇所に設置されております。キッチン背面の食器棚や、玄関横のシューズクロークなど、収納が各所にあるのが注目です。ブラックな外観が象徴的な建物となっております。室内設置の小物や家具はディスプレイ用にて、撤去されます。

物件種別
売買 戸建
所在地
神戸市灘区灘南通5丁目(C号地)
交通
東海道本線 / 摩耶駅
バス / 徒歩
分 / 2分
価格
6180万円
土地面積 / 私道負担
57.1m2 / 2.7m2
建物面積
112.89m2
間取
4LDK
建蔽率 / 容積率
80% / 242%
建物構造
木造3階建
築年月
2025年 11月
用途地域
一種中高
現況 / 引渡
完成済 / 相談
小学校区
西灘小学校
中学校区
原田中学校
備考
駐車スペース1台あり(車種による)
建築確認番号 第J24-20658号

駅周辺情報

商店街
水道筋商店街:徒歩6分(550m)
スーパー
マルハチ:徒歩10分(600m)
銀行
みずほ銀行:徒歩7分(600m)
信用金庫
神戸信用金庫:徒歩6分(550m)
郵便局
灘南郵便局:徒歩1分(81m)
スポーツセンター
王子スポーツセンター:徒歩16分(1000m)
動物園
王子動物園:徒歩11分(1000m)
美術館
兵庫県立美術館原田の森ギャラリー:徒歩12分(1100m)
美術館
横尾忠則現代美術館:徒歩12分(1100m)
ドラッグストア
ライフォート水道筋店:徒歩6分(550m)
保育所
西灘保育所:徒歩4分(300m)
保育園
めばえの園保育園:徒歩4分(300m)
幼稚園
ランバス記念幼稚園:徒歩4分(350m)
小学校
西灘小学校:徒歩7分(550m)
中学校
原田中学校:徒歩8分(650m)
中学校・高校
神戸海星女子学院中学校・高校:徒歩17分(1500m)
中学校・高校
松蔭中学校・高校:徒歩19分(1700m)
高校
神戸高校:徒歩18分(1600m)
大学
神戸海星女子学院大学:徒歩18分(1500m)
ホームセンター
コーナン灘大石川店:徒歩10分(750m)
コンビニ
セブンイレブン:徒歩1分(2m)
警察署
灘警察:徒歩11分(1000m)
家電量販店
ケーズデンキHAT神戸店:徒歩18分(1400m)
コンビニ
ファミリーマート:徒歩3分(230m)
阪神本線
西灘駅:徒歩5分(350m)

近い条件の物件


最近チェックした物件